Strona główna » SAUNY » Piec na drewno Harvia Legend 150
Piec na drewno Harvia Legend 150Bezpieczne odległości dla pieca LegendOsłons stalowa dostępna w opcjiKomin stalowy odpowiedni do pieców opalanych drewnemDrzwi do sauny zaprojektowane w konwencji LegendKosz na kamienie dostępny w opcjiLampa zaprojektowana w konwencji pieców Legend
Piec na drewno Harvia Legend 150
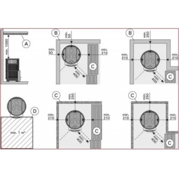
Bezpieczne odległości dla pieca Legend
Osłons stalowa dostępna w opcji
Komin stalowy odpowiedni do pieców opalanych drewnem
Drzwi do sauny zaprojektowane w konwencji Legend
Kosz na kamienie dostępny w opcji
Lampa zaprojektowana w konwencji pieców Legend

Piec na drewno Harvia Legend 150

Dostępność: Dostępny

Koszt wysyłki: od 80,00 zł

Stan produktu: Nowy

Cena brutto: 5 590,00 zł

Cena netto: 4 544,72 zł

Ilość: szt.
Dodaj do koszyka

dodaj do schowka

  • Opis produktu
  • Akcesoria (4)
  • Produkty powiązane (1)
  • Linki (1)
  • Do pobrania (1)
  • Recenzje produktu (0)
Piec na drewno Harvia Legend dostarcza wiele komfortu podczas użytkowania sauny. Czarna stalowa siatka - rama jest wypełniona dużą ilością kamieni, które, kiedy są nagrzane, rozprowadzają dużo ciepła nawet kiedy w kabinie nie jest zbyt wysoka temperatura. To ciepło utrzymuje się także wtedy, kiedy płomień w komorze pieca przygasa.

Piece z serii Legend mają nowoczesną budowę wewnętrzną, dzięki czemu drewno spala się bardziej oszczędnie i bardziej czysto ekologicznie. Mniejsza niż w innych piecach bezpieczna odległość od palnych materiałów w kabinie ułatwia zagospodarowanie wnętrza sauny bardziej ekonomicznie.

Kierunek otwierania drzwiczek pieca można zmieniać co jeszcze bardziej ulatwia korzystanie z pieca. Piec ma nózki z regulacją wysokości, co pozwala dokładnie go wypoziomować.


Piec do kabiny o kubaturze 5 - 13 m sześciennych. Mieści do 120 kg kamieni. Kamienie należy dokupić oddzielnie.
Srednica pieca: 530 mm, wysokość pieca: 740 mm. Waga bez kamieni: 58 kg
Srednica rury dymowej: 115 mm. Wyjście rury: do góry

W komplecie do pieca są dostępne za dodatkową opłatą: blachy osłonowe stalowe, osłona na kamienie wokół rury dymowej - kosz na kamienie, komin stalowy izolowany, drzwi szklane i lampa - utrzymane w konwencji pieca Legend.
Klepsydra Dr. Friedrichs drewno

Klepsydra Dr. Friedrichs drewno

89,00 zł brutto72,36 zł netto
szt. Do koszyka
Termometr spirytusowy Dr.Friedrichs

Termometr spirytusowy Dr.Friedrichs

23,00 zł brutto18,70 zł netto
szt. Do koszyka
Klepsydra Dr. Friedrichs drewno/metal

Klepsydra Dr. Friedrichs drewno/metal

124,00 zł brutto100,81 zł netto
szt. Do koszyka
Termometr Dr. Friedrichs drewno/metal

Termometr Dr. Friedrichs drewno/metal

79,80 zł brutto64,88 zł netto
szt. Do koszyka
kamienie kamienie

Kamienie do pieca do sauny

62,00 zł brutto50,41 zł netto
szt. Do koszyka

Nikt jeszcze nie napisał recenzji do tego produktu. Bądź pierwszy i napisz recenzję.

Tylko zarejestrowani klienci mogą pisać recenzje do produktów. Jeżeli posiadasz konto w naszym sklepie zaloguj się na nie, jeżeli nie załóż bezpłatne konto i napisz recenzję.

Pozostałe produkty z kategorii
Piec elektryczny Harvia Vega BC80E

Piec elektryczny Harvia Vega BC80E

1 203,00 zł brutto978,05 zł netto
szt. Do koszyka
Piec elektryczny Harvia Topclass Combi KV50SE

Piec elektryczny Harvia Topclass Combi KV50SE

3 590,00 zł brutto2 918,70 zł netto
szt. Do koszyka
Piec elektryczny Harvia Cilindro PC90E - 9 kW

Piec elektryczny Harvia Cilindro PC90E - 9 kW

1 492,00 zł brutto1 213,01 zł netto
szt. Do koszyka
Płyn do mycia sauny Harvia

Płyn do mycia sauny Harvia

56,00 zł brutto45,53 zł netto
szt. Do koszyka
Piec elektryczny Harvia Cilindro PC70E - 6.8 kW

Piec elektryczny Harvia Cilindro PC70E - 6.8 kW

1 333,00 zł brutto1 083,74 zł netto
szt. Do koszyka
USTAWIENIA PLIKÓW COOKIES
Są zawsze włączone, ponieważ umożliwiają podstawowe działanie strony. Są to między innymi pliki cookie pozwalające pamiętać użytkownika w ciągu jednej sesji lub, zależnie od wybranych opcji, z sesji na sesję. Ich zadaniem jest umożliwienie działania koszyka i procesu realizacji zamówienia, a także pomoc w rozwiązywaniu problemów z zabezpieczeniami i w przestrzeganiu przepisów.
Pliki cookie funkcjonalne pomagają nam poprawiać efektywność prowadzonych działań marketingowych oraz dostosowywać je do Twoich potrzeb i preferencji np. poprzez zapamiętanie wszelkich wyborów dokonywanych na stronach.
Pliki analityczne cookie pomagają właścicielowi sklepu zrozumieć, w jaki sposób odwiedzający wchodzi w interakcję ze sklepem, poprzez anonimowe zbieranie i raportowanie informacji. Ten rodzaj cookies pozwala nam mierzyć ilość wizyt i zbierać informacje o źródłach ruchu, dzięki czemu możemy poprawić działanie naszej strony.
Pliki cookie reklamowe służą do promowania niektórych usług, artykułów lub wydarzeń. W tym celu możemy wykorzystywać reklamy, które wyświetlają się w innych serwisach internetowych. Celem jest aby wiadomości reklamowe były bardziej trafne oraz dostosowane do Twoich preferencji. Cookies zapobiegają też ponownemu pojawianiu się tych samych reklam. Reklamy te służą wyłącznie do informowania o prowadzonych działaniach naszego sklepu internetowego.
ZATWIERDZAM
Korzystanie z tej witryny oznacza wyrażenie zgody na wykorzystanie plików cookies. Więcej informacji możesz znaleźć w naszej Polityce Cookies.
USTAWIENIA
ZGADZAM SIĘ